



| 型号 |
流量 Q m3/h |
扬程 H m |
转速 n r/min |
效率 η % |
汽蚀余量 (NPSH)r m |
电机功率 N kW |
| S25×25-12.5 | 3.2 | 12.5 | 2900 | 41 | 3 | 0.55/0.75 |
| S40×32-20 | 6.3 | 20 | 2900 | 50 | 3 | 1.1/1.5 |
| S40×32-32 | 6.3 | 32 | 2900 | 45 | 3 | 2.2/3 |
| S50×40-20 | 12.5 | 20 | 2900 | 53 | 3 | 2.2/3 |
| S50×32-32 | 12.5 | 32 | 2900 | 5l | 3 | 4.0/5.5 |
| S65×50-20 | 25 | 20 | 2900 | 64 | 3 | 3.0/4 |
| S65×50-25 | 25 | 25 | 2900 | 6l | 3 | 3.0/4 |
| S65×50-32 | 25 | 32 | 2900 | 60 | 3 | 5.5/7.5 |
| S80×65-32 | 50 | 32 | 2900 | 69 | 4 | 7.5/11 |
| S100×80-50 | 100 | 50 | 2900 | 73 | 5 | 22/30 |
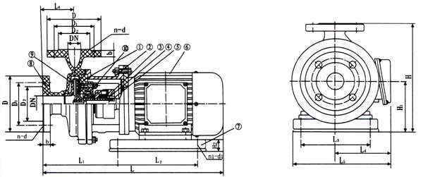
| 1 | 泵盖 |
![]() ![]() |
| 2 | 联接架 | |
| 3 | 机械密封 | |
| 4 | 轴套 | |
| 5 | 轴 | |
| 6 | 电机 | |
| 7 | 底座 | |
| 8 | 泵体 | |
| 9 | 叶轮 | |
| 10 | 密封压盖 |
| 型 号 | 吸 入 口 | 排 出 口 | L | 1 | L2 | L3 | L4 | L5 | L6 | H | Hl | n2 | n1 | d1 | ||||||||||||
| DN | D | D 1 | D 2 | b | n | d | DN | D | D1 | D2 | b | n | d | |||||||||||||
| S25×25-12.5 | 25 | 115 | 85 | 65 | 16 | 4 | 14 | 25 | 115 | 85 | 65 | 16 | 4 | 14 | 437 | 180 | 180 | 140 | 150 | 244 | 60 | 200 | 94 | 23 | 4 | 14 |
| S40×32-20 | 40 | 145 | 110 | 88 | 18 | 4 | 18 | 32 | 135 | 100 | 78 | 18 | 4 | 18 | 458 | 192 | 200 | 150 | 150 | 252 | 82 | 258 | 120 | 40 | 4 | 14 |
| S40×32-32 | 40 | 145 | 110 | 88 | 18 | 4 | 18 | 32 | 138 | 100 | 78 | 18 | 4 | 18 | 540 | 230 | 240 | 160 | 155 | 262 | 85 | 315 | 145 | 55 | 4 | 18 |
| S50×40-20 | 50 | 160 | 125 | 100 | 20 | 4 | 18 | 40 | 145 | 110 | 88 | 19 | 4 | 19 | 535 | 226 | 240 | 160 | 155 | 262 | 100 | 295 | 145 | 55 | 4 | 18 |
| 1 | 泵盖 |
![]() ![]() |
| 2 | 机械密封 | |
| 3 | 轴套 | |
| 4 | 联结架 | |
| 5 | 轴 | |
| 6 | 联轴器 | |
| 7 | 电机 | |
| 8 | 底座 | |
| 9 | 叶轮 | |
| 10 | 泵体 |
| 型号 | 吸 入 口 | 排 出 口 | L | L1 | L2 | L3 | L4 | L5 | H | H1 | n1 | d1 | 电机功率KW | ||||||||||||
| DN | D | D1 | D2 | b | n | d | DN | D | Dl | D2 | b | n | d | ||||||||||||
| S50×32-32 | 50 | 160 | 125 | 100 | 18 | 4 | 18 | 32 | 135 | 100 | 75 | 18 | 4 | 18 | 945 | 319 | 420 | 310 | 370 | 80 | 435 | 250 | 4 | 24 | 4 |
| S65×50-20 | 65 | 180 | 145 | 120 | 21.5 | 4 | 18 | 50 | 160 | 125 | 100 | 21.5 | 4 | 18 | 830 | 250 | 420 | 250 | 320 | 90 | 360 | 210 | 4 | 18.5 | 3 |
| S65×50-32 | 65 | 185 | 1 45 | 122 | 22 | 4 | 18 | 50 | 165 | 125 | 102 | 22 | 4 | 18 | 1020 | 345 | 420 | 310 | 370 | 90 | 430 | 250 | 4 | 24 | 5.5 |
| S80×65-32 | 80 | 195 | 160 | 135 | 23.5 | 4 | 18 | 65 | 180 | 145 | 120 | 21.5 | 4 | 18 | 1022 | 370 | 520 | 310 | 410 | 100 | 450 | 250 | 4 | 24 | 7.5 |
| S80×65-32 | 80 | 195 | 160 | 135 | 23.5 | 4 | 18 | 65 | 180 | 145 | 12C | 21.5 | 4 | 18 | 1150 | 370 | 520 | 310 | 410 | 100 | 480 | 250 | 4 | 24 | 1l |
| S100×80-50 | 1OO | 215 | 180 | 158 | 24 | 8 | 18 | 80 | 195 | 160 | 138 | 23.5 | 4 | 18 | 1353 | 428 | 635 | 370 | 485 | 110 | 530 | 280 | 4 | 24 | Y180L 22 |
| 1462 | 575 | 300 | Y200L 30 | ||||||||||||||||||||||

稍后您将接到我们的来电请准备接听
